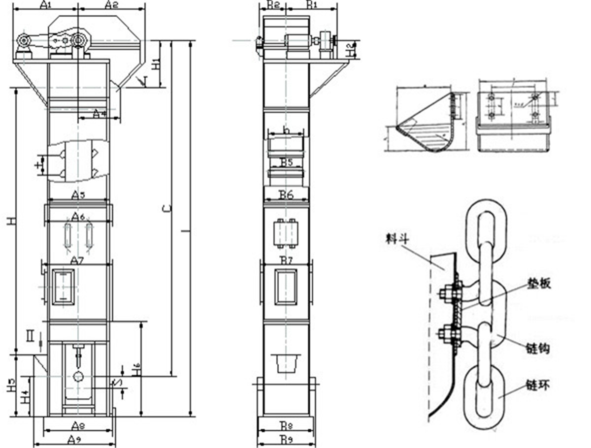
環鏈斗式提升機由運動部分(料斗與牽引鏈條)、帶有傳動鏈輪的上部區段、帶有拉緊輪的下部區段、中間機殼、驅動裝置、逆止制動裝置等組成。本提升機的料斗為間斷式布置,利用“掏取法”進行裝載,“離心投料法”卸料。本斗式提升機的牽引機構是兩根環形鏈條.我公司生產的環鏈斗式提升機,由運動部分(料斗與牽引鏈條)、帶有傳動鏈輪的上部區段、帶有拉緊輪的下部區段、中間機殼、驅動裝置、逆止制動裝置等組成。本提升機的料斗為間斷式布置,利用“掏取法”進行裝載,“離心投料法”卸料。本斗式提升機的牽引機構是兩根環形鏈條。
主要特點:
1、維護方便,壽命長,結構剛性強;
2、輸送物料的溫度*高可達250℃,提升高度運行平穩可靠,噪音小且維護方便;
3、中間節具有單通道和雙通道兩種形式,改進機型的提升輸送量比普通機型提高30%以上;
4、提升機環鏈采用合金鋼鍛造,并經滲碳淬火處理,具有極高的抗拉強度和耐磨性能;
5、整機體積小、轉速高、確保快速均勻輸送;
6、運行平穩、輸送效率高;
7、料斗形式多,應優先選用;
8、適應性強、安裝維修方便、壽命長。















