石灰石輥軸篩由多組同向轉動的篩軸組成,篩軸上裝有若干篩片,相鄰篩軸上的篩片相互交叉組成篩孔,小于篩孔的物料在運轉過程中透篩,大于篩孔的塊狀料在篩片上滾動從出料口排除。新型石灰石輥軸篩顛覆傳統篩分概念,適用篩分煤種,特別是高水分、高黏性、泥化嚴重的煤種,具有脫泥效率的優勢,將成為代替傳統篩分設備的新一代篩分機。滾軸篩的篩面由很多根平行排列的、其上交錯地裝有篩盤的輥軸組成,滾軸通過鏈輪或齒輪傳動而旋轉,其轉動方向與物料流動方向相同。為了使篩上的物料層松動以便于透篩,篩盤形狀有偏心的和異形的。為防止物料卡住篩軸,裝有安全保險裝置。滾軸篩全部為座式,有左傳動和右傳動之分,又分帶走輪和不帶走輪的,帶走輪的可在鋼軌上移動。
特點:
1)篩軸由輥道電機單軸驅動,便于維修;
2)入料端篩軸傾斜安裝,可快速分離物料,篩分效率高;
3)兩篩軸上的篩片相交,減小了相鄰篩軸形成的死角,避免了卡篩;
4)設有旁路,配有電動推桿,手動操作換向機構,不需要篩分時,直接經旁側路過,便利設備檢修和清理;
5)旁路換向板采用欄柵結構,當物料落到換向板時部分顆粒首先得到篩分,有利地提高了篩分效率;
6)箱體兩側板面設計活動插板結構,當需要更換檢修篩軸、篩片、防腐襯板時非常方便;
7)設有堵煤報警和電氣控制安全保護,避免異常運行造成設備損壞。
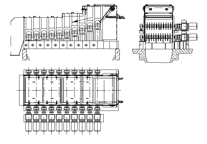
石灰石輥軸篩是由機體、機蓋、篩軸、進煤斗、出口罩殼和控制柜六大部分組成。
1、機體部分:機體為焊接件,所有篩軸總成通過聯結螺栓固定在機體,機體側面裝有襯板。
2、機蓋部分:機蓋為焊接件,機蓋起密封作用,機蓋上面設有檢修門,前、后跟進煤斗和出口罩殼聯結。
3、篩軸總成部分:篩軸總成由輥道電機(含減速機)、篩軸、篩片、平鍵、鎖緊螺母、聯軸器、軸承座及軸承座附件組成,輥道電機(含減速機)與篩軸通過聯軸器直聯。
4、進煤斗部分:帶旁路的進煤斗為焊接件,內設擋板,擋板通過電動推桿執行器推動,限位翻轉,進煤斗內裝有襯板。
5、出口罩殼部分:出口罩殼為焊接件,出口罩殼起密封作用,出口罩殼上面設有檢修門。
6、控制柜部分:適用于燃煤火力發電廠輸煤系統和煤礦選煤系統,對煤炭粒度進行篩分。
















